EFH 177 - 38 - 100
Darlehenssumme:
Kaufpreis:
Postleitzahl:
Ort:
Objektart:
Wohnung
Ein- oder Zwei-Familienhaus
Mehr-Familienhaus
Grundstück
Finanzierungszweck:
Kauf
Bau
Mehr-Modernisierung
Umschuldung
berechnen
Die Nutzflächen - sowie Außenmaße können je nach Wandaufbau
abweichen
Außenmaße
Nutzfläche
Kniestock
Dachform
11,60 m x 9,94 m
177 m²
1 m
Satteldach 38°
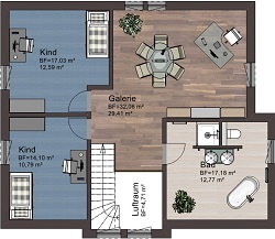
Nutzfläche
Erdgeschoss
Dachgeschoss
177,48 m²
88,65 m²
88,67 m²
EFH 177 - 38 - 100
Einfamilienhaus mit Wohlfühl - Atmosphäre
Effizienzhaus 40
*
4 AUSBAU - Varianten
Ausbauhaus * fast fertig * schlüsselfertig
* schlüsselfertig-plus
-
Effizienz 40
- Thermo - Außenwand
*
Gebäudehülle
Effizienz 40 förderfähig
* Alle Innen u. Außenwände doppelt beplankt
* Fenster mit 6- Kammernprofil und 3- fach -
Verglasung
* Rollläden
* Luft-Wasser-Wärmepumpe /Fußbodenheizung
EFH 177 - 38 - 100
zurück zu Einfamilienhaus
Einfamilienhaus
zurück zu Einfamilienhaus
Einfamilienhaus
X
X
X
X
X
Bitte klicken Sie auf die Bilder
Bitte senden Sie uns Preise und Unterlagen zum EFH 177 - 38 - 100
Bitte füllen Sie alle mit * markierten Felder aus. (Pflichtfelder)
Anrede*
Herr
Frau
Divers
Vorname*
Name*
Straße/Nr.*
PLZ/Ort*
AF
EG
AX
AL
DZ
AS
VI
AD
AO
AI
AQ
AG
GQ
AR
AM
AW
AC
AZ
ET
AU
BS
BH
BD
BB
BY
BE
BZ
BJ
BM
BT
BO
BA
BW
BV
BR
VG
IO
BN
BG
BF
BU
BI
EA
CL
CN
CP
CK
CR
CI
DK
DE
DG
DM
DO
DJ
EC
SV
ER
EE
CE
EU
FK
FO
FJ
FI
FR
GF
PF
TF
GA
GM
GE
GH
GI
GD
GR
GL
GP
GU
GT
GG
GN
GW
GY
HT
HM
HN
HK
IN
ID
IM
IQ
IR
IE
IS
IL
IT
JM
JP
YE
JE
JO
KY
KH
CM
CA
IC
CV
KZ
QA
KE
KG
KI
CC
CO
KM
CD
CG
KP
KR
HR
CU
KW
LA
LS
LV
LB
LR
LY
LI
LT
LU
MO
MG
MW
MY
MV
ML
MT
MA
MH
MQ
MR
MU
YT
MK
MX
FM
MD
MC
MN
ME
MS
MZ
MM
NA
NR
NP
NC
NZ
NT
NI
NL
AN
NE
NG
NU
MP
NF
NO
OM
AT
TL
PK
PS
PW
PA
PG
PY
PE
PH
PN
PL
PT
PR
RE
RW
RO
RU
SB
BL
MF
ZM
WS
SM
ST
SA
SE
CH
SN
RS
SC
SL
ZW
SG
SK
SI
SO
ES
LK
SH
KN
LC
PM
VC
ZA
SD
GS
SR
SJ
SZ
SY
TJ
TW
TZ
TH
TG
TK
TO
TT
TA
TD
CZ
TN
TR
TM
TC
TV
SU
UG
UA
HU
UM
UY
UZ
VU
VA
VE
AE
US
GB
VN
WF
CX
EH
ZR
CF
CY
Telefon*
E-Mail*
Grundstück*
ja
nein
in Aussicht
möchten Sie Eigenleistungen erbringen*
Ja
Nein
Malerarbeiten, Bodenbeläge
weitere Eigenleistungen
Fragen / Bemerkung / Wünsche
(Restzeichen:
3000
)
Zum Schutz vor Spamattacken muss der links dargestellte Sicherheitscode (Zahlen-Buchstabenkombination) in das Eingabefeld übertragen werden!
Grafik neu laden
|
Code anhören
* Ich willige ein, dass meine Angaben zur Kontaktaufnahme und Zuordnung für eventuelle Rückfragen dauerhaft gespeichert werden.
Hinweis:
Diese Einwilligung können Sie jederzeit mit Wirkung für die Zukunft widerrufen, indem Sie eine E-Mail an `mira-haus@online.de` schicken.
DWFormgenerator 7.5.0